تايم خليج يالونغ
عنوان المشروع: رقم 2 طريق أنمي، منطقة جييانغ، مدينة سانيا (100 متر إلى الشمال من محطة سكة حديد خليج يالونغ فائقة السرعة)
مساحة الكلية: 120 دونم صيني
مساحة البناء: 237,537 متر مربع
نسبة مساحة الأرضية: 2.1.
معدل التخضير: 40%.
رسم الملكية: 5.9 يوان/متر مربع
الوقوف: 1:1.
مدة الملكية: 70 سنة (2017-2087)
مجموع عدد المباني: 8 منازل شاهقة +16 منزل ذو حديقة

موقع المشروع
(دبل باي) لديها إمكانيات أكثر من ذلك الحديقة لطيفة، كل شيء هادئ.
منظر الحديقة ، منزل ذو مصعد

انخفاض ميزة تحديد الموقع
قد 20 دقيقة للتمتع بحياة العطلة المثالية في سانيا
من خليج هايتانغ إلى خليج يالونغ، ثم إلى دادونغهاي، خليج سانيا، الطيور والزهور، أشعة الشمس والشواطئ، ملعب جزيرة التجارة الحرة الدولية
كما يمكنها الوصول المباشر إلى مدينة سانيا، ومستشفى 301 (فرع سانيا)، ومركز التسوق لخليج هايتانغ الخالي من الدوتي، وحديقة أتلانتس المائية، ومنطقة الأعمال التجارية لمنافذ خليج يالونغ، وسانيا تشيانتشيانتشي وغيرها من المناطق التجارية الداعمة.
بوابة الخليج المزدوج، عطلة حقيقية بعيدا عن غبار المدينة، الازدهار والهدوء فقط "على بعد خطوة".

[دعم المشاريع]
خمس دقائق سيرا على الأقدام إلى مجمع يالونغ باي التجاري، مجمع 60،000 متر مربع تجاري.
منتجع خليج يالونغ للاستحمام الطبيعي، حديقة الغابات الاستوائية 5A، ملعب غولف يضم 18 حفرة، شارع بايهواغو التجاري، مجمع أولتس التجاري، شارع ياتاي التجاري.
جزيرة هاينان تحيط بالسكة الحديدية فائقة السرعة --بجوار محطة خليج يالونغ.
بجانب محطة الحافلات الشرقية تسعة خطوط للحافلات
يوجد سوقان كبيران: سوق جييانغ، مدينة هونغ هونغ التجارية. تشمل الآن السينما، كي تي في، ساحة المأكولات البحرية، الفندق، سوق الجملة.
301 مستشفى هاربين الثاني.


[دعم المجتمع المحلي]
5000 نقطة مسطحة نادي مقلاة الترفيه.
1000 متر مربع مسبح و 400 متر مربع مسبح للأطفال.
الطابق الأول من المبنى 1 والمبنى 2 هو واجهة المتجر السفلي مثل السوبر ماركت والصيدلية والمطعم.
3 طوابق روضة أطفال دولية ثنائية اللغة.
مكتبة، صالة شطرنج وبطاقات، ملعب كرة سلة، مركز نشاط متوسطي العمر والمسنين، غرفة ترفيه للأطفال، صالة ألعاب رياضية، إلخ.


[نوع المنزل الرئيسي]
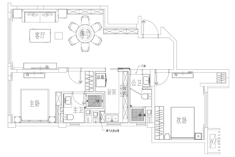
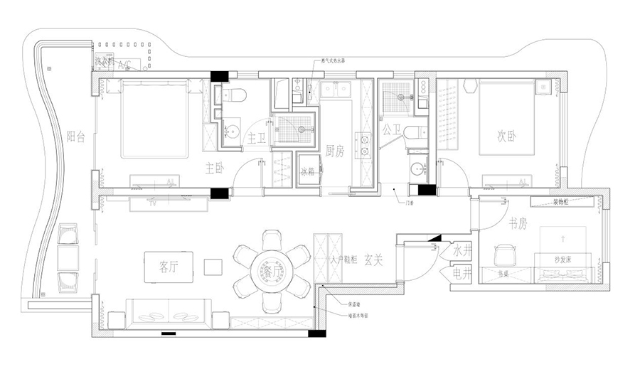
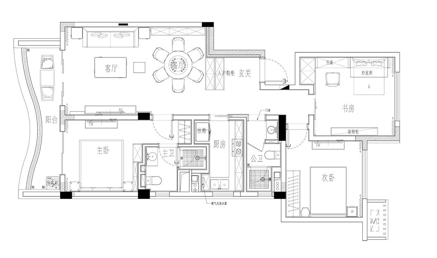
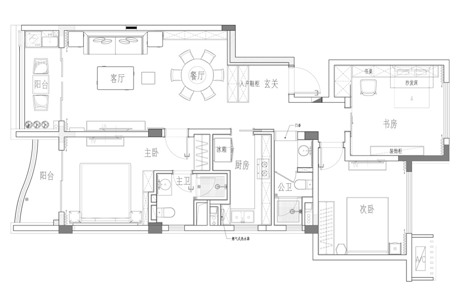
غرفتا نوم وحمامين على مساحة 100 متر مربع
104 متر مربع -115 متر مربع ثلاث غرف نوم وحمامين (منزل أجنبي)

[تقدير نوع نادر من المنازل ذات الحديقة ]
جاردن هاوس - مقدمة نوع البيت
عائلتان تتشاركان في السلّم، نمط الصفيحة النقية من الأسرة الخاصة، المساحة القريبة غير المشروعة
من الشمال إلى الجنوب، جميع شفاف تخطيط المؤسس الأفقي الفضاء متصلة تماما، دفاع متألق، مقياس الحياة المتفوق
شرفة المناظر الطبيعية الغنية مجموعة المشاهدة تتفرد بمجال واسع من الرؤية، ودمج المناظر الطبيعية في الحياة، مع رؤية واسعة الزاوية للعالم
عرض تصميم الأجنحة يكرم التصميم الرئيسي لجناح غرفة النوم، حمام مستقل، تمتع مريح بالسكن الخاص



[حديقة المنزل: نوع (منزل بجانب الطابق الأول)]
منزل الحديقة أ (الباب الجانبي بالطابق الأول)
ثلاث غرف نوم وغرفة معيشة وحمّامين
عدد الطوابق: 1F.
مساحة البناء: 104 متر مربع
[حديقة المنزل: النوع B (الأسرة الوسطى في الطابق الأول)
منزل الحديقة أ (الباب الجانبي بالطابق الأول)
ثلاث غرف نوم وغرفة معيشة وحمّامين
عدد الطوابق: 1F.
مساحة البناء: 104 متر مربع
[حديقة المنزل: النوع B (الأسرة الوسطى في الطابق الأول)]

حديقة المنزل B (من الأسرة المتوسطة الأرضية)
غرفتا نوم وغرفة معيشة وحمامين
عدد الطوابق: 1F.
مساحة البناء: 100 متر مربع
[حديقة المنزل: C (نموذج الغرفة بجانب أرضية المنزل) نوع المنزل]

منزل الحديقة C (نموذج الغرفة بجانب أرضية المنزل)
ثلاث غرف نوم وغرفة معيشة وحمّامين
عدد الطوابق: 2-5F.
مساحة البناء: 110 متر مربع
غاردن هاوس: D (نموذج الشقة) النوع

جاردن هاوس D (شقة نموذجية)
ثلاث غرف نوم وغرفة معيشة وحمّامين
عدد الطوابق: 2-5F.
مساحة البناء: 115 مترا مربعا
[حديقة المنزل: E (الطابق العلوي الأسرة المعيشية) النوع]

منزل الحديقة (باب الطابق العلوي الجانبي)
ثلاث غرف نوم وغرفة معيشة وحمّامين
عدد الطوابق: 6F.
مساحة البناء: 110 متر مربع
[حديقة البيت: F (العائلة الوسطى في الطابق العلوي) النوع]

جاردن هاوس F (عائلة متوسطة في الطابق العلوي)
ثلاث غرف نوم وغرفة معيشة وحمّامين
عدد الطوابق: 6F.
مساحة البناء: 115 مترا مربعا



